Общероссийский классификатор стандартов → ПОДЪЕМНО-ТРАНСПОРТНОЕ ОБОРУДОВАНИЕ → Подъемное оборудование *Лифты и эскалаторы см. 91.140.90 *Подъемное оборудование, используемое в судостроении см. 47.020.40 → Краны *Включая самоходные краны, башенные краны, консольные краны, мостовые краны и т.д.
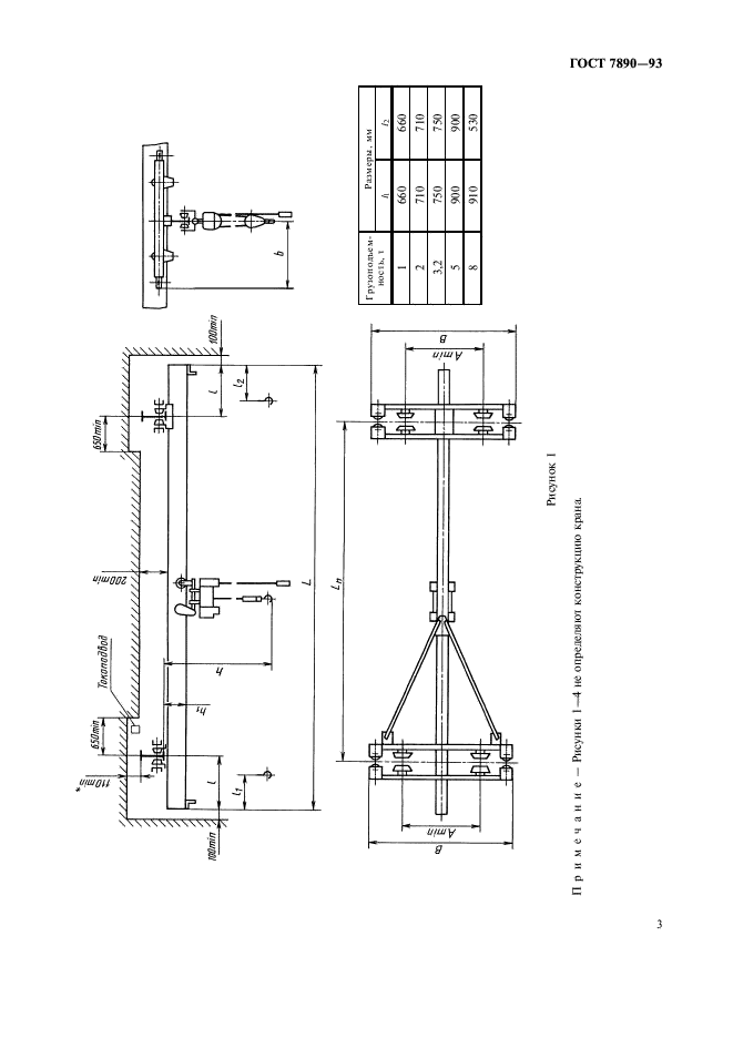
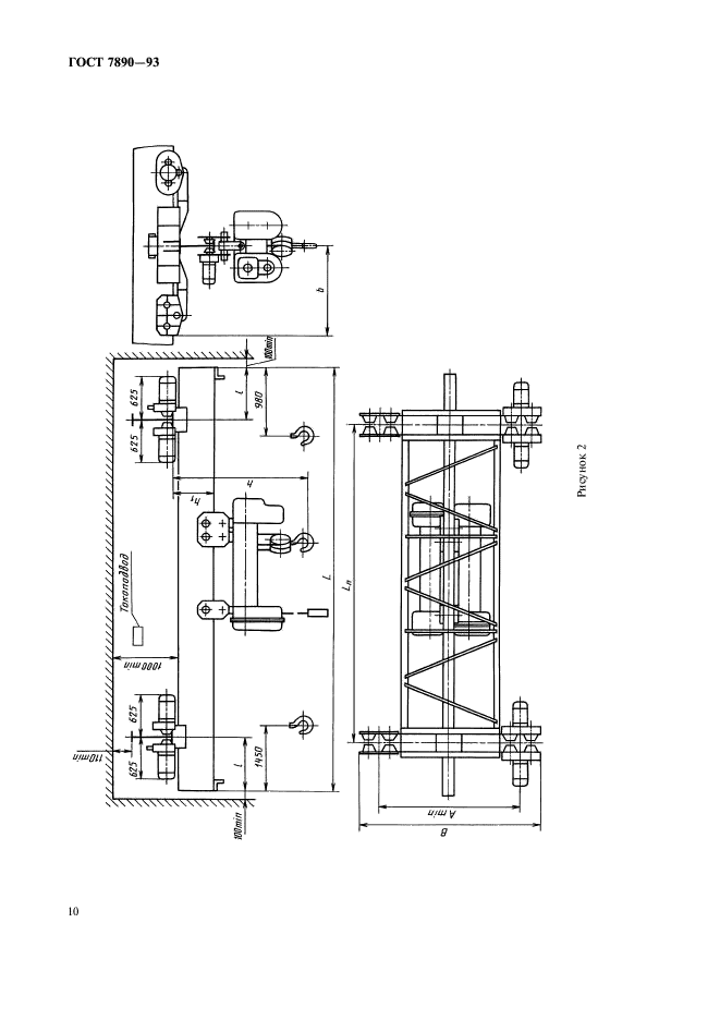
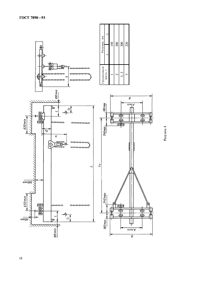
Настоящий стандарт распространяется на мостовые электрические однобалочные подвесные краны группы режима работы 3К с электрической талью и электрическим механизмом передвижения, управляемые с пола, грузоподъемностью от 1,0 до 10 т, а также на краны мостовые ручные однобалочные подвесные блочно-модульной конструкции, унифицированные с электрическими, с ручным приводом механизма подъема и передвижения, группы режима работы 1К, грузоподъемностью от 1 до 5 т.
Стандарт не распространяется на краны, предназначенные для эксплуатации во взрывоопасных и пожароопасных средах, в помещениях с парами кислот и щелочей, концентрации которых вызывают разрушение электрической изоляции, для транспортирования расплавленного и раскаленного металла, ядовитых веществ
| Название на англ.: | Travelling single-girder suspended cranes. Specifications |
| Тип документа: | стандарт |
| Статус документа: | действующий |
| Число страниц: | 31 |
| Дата актуализации текста: | 01.08.2013 |
| Дата актуализации описания: | 01.08.2013 |
| Дата издания: | 01.11.2006 |
| Дата введения в действие: | 01.01.1995 |
| Дата последнего изменения: | 22.05.2013 |
| Переиздание: | переиздание |
| Взамен: | ГОСТ 7890-84 |































Ведущий эксперт по сертификации с 10-летним опытом. Помогу решить любые вопросы по оформлению документов.
Для города действует скидка на оформление документов до -40%.
Узнать подробности